Gabino Barreda 139

Vivienda multifamiliar vertical

Ciudad de México

2021

6150 m2

Gabino Barreda 139, desarrollado para la inmobiliaria Abilia, surge de la necesidad de crear un producto habitacional sencillo que responda a las prácticas urbanas actuales. Su contexto se fundamenta en la transformación de la vivienda tradicional, donde los espacios interiores se diluyen en una extensión del entorno urbano, integrando la vida diaria del usuario con la dinámica de la ciudad. La inserción del edificio se logra mediante una conexión directa con la banqueta y la economía local, permitiendo que cada ambiente se vincule fluidamente al paisaje urbano y fomente la interacción social. 

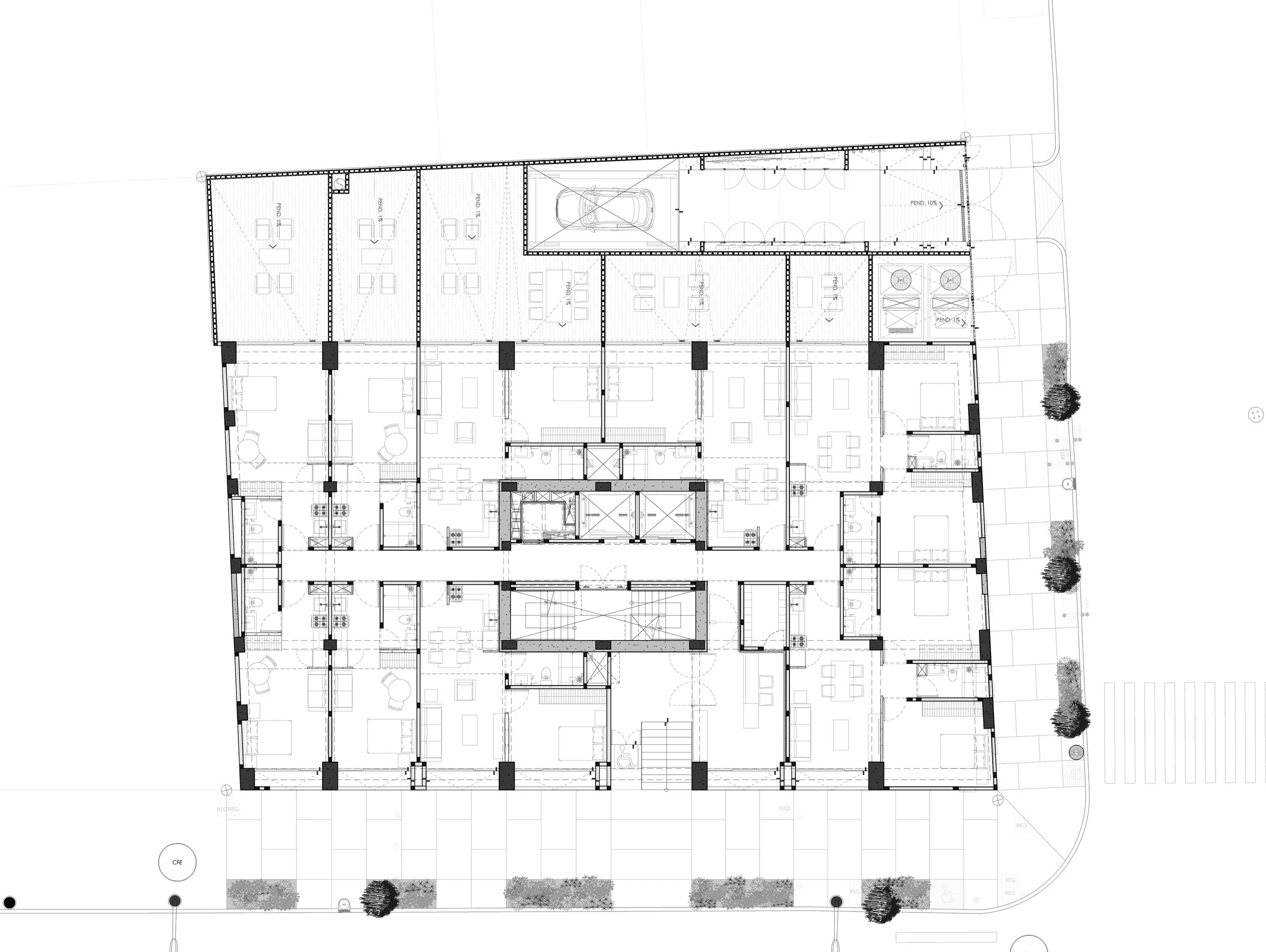
El concepto arquitectónico se centra en la síntesis del programa habitacional, reduciendo la complejidad de la vivienda a elementos esenciales que faciliten el acceso y la flexibilidad para un usuario que se desplaza por la ciudad. El programa arquitectónico se materializa en un volumen distribuido en 10 niveles sobre la banqueta, albergando 117 viviendas y un área de amenidades en la azotea, destinada a zonas de asadores, un invernadero, baños y espacios para el descanso, optimizando así el aprovechamiento integral de la cubierta. 

En cuanto a los materiales, se emplean soluciones modernas y funcionales que garantizan durabilidad, eficiencia y una estética minimalista, combinando técnicas constructivas contemporáneas con acabados de alta calidad. La sustentabilidad se aborda a través del uso racional de la energía, la optimización de la iluminación natural y la ventilación, así como la incorporación de áreas verdes en la azotea, las cuales contribuyen al mejoramiento de la imagen urbana y al bienestar integral de sus habitantes realmente. 

Anterior
Anterior

Vicente Rivas 182

Siguiente
Siguiente

Edgar Allan Poe 327