Edgar Allan Poe 327

Vivienda multifamiliar vertical

Ciudad de México

2020

1535 m2

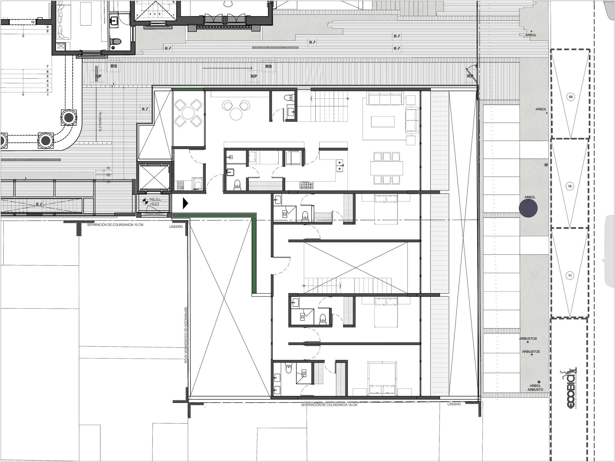
Edgar Allan Poe 327 es un conjunto residencial desarrollado por Abilia, el cual se origina ante la necesidad de culminar el complejo con un edificio de carácter exclusivo que solo albergará cinco departamentos. Este desafío surge en un contexto donde el límite programático invita a la creación de espacios únicos, que resalten tanto la identidad histórica del conjunto como la modernidad en el diseño habitacional. La inserción del edificio se concibe como una extensión natural de la propuesta original, estableciendo un diálogo espacial con la casa catalogada y respetando la huella cultural del entorno. 

El concepto arquitectónico se fundamenta en la exploración de ambientes amplios y flexibles, destinados a potenciar la creatividad y el bienestar de sus habitantes. El programa arquitectónico prioriza la calidad y la exclusividad, integrando áreas que favorecen la convivencia y la interacción en un entorno íntimo pero abierto. En cuanto a los materiales, el uso del concreto y el acero se erige como elemento distintivo, aportando solidez estructural y continuidad con la tradición constructiva del complejo. Asimismo, la propuesta incorpora estrategias de sustentabilidad que incluyen la eficiencia energética y el manejo racional de recursos, en un esfuerzo por armonizar la innovación con el compromiso ambiental. 

Esta intervención, articulada en torno a una visión contemporánea, reinterpreta la esencia del conjunto de Edgar Allan Poe 327, ofreciendo una propuesta habitacional que fusiona tradición, funcionalidad y responsabilidad ecológica en cada uno de sus espacios. La integración de soluciones ecológicas y técnicas innovadoras consolida el firme compromiso de sostenibilidad integral. 

Anterior
Anterior

Gabino Barreda 139

Siguiente
Siguiente

Hamburgo 269